Bisherige Projekte
Ein Blick auf unsere abgeschlossenen Projekte zeigt, was möglich ist: maßgeschneiderte Lösungen, präzise Umsetzung und nachhaltige Ergebnisse. Hier finden Sie eine Auswahl an Projekten, die erfolgreich realisiert wurden – jedes davon ein Beweis für Qualität und Engagement.
Lassen Sie sich inspirieren und gewinnen Sie Einblicke in meine Arbeit und die Bandbreite meiner Leistungen.

Bewegliche Brücke für Emsfähre
Weener/Marker Siel
Konstruktion und Zeichnungserstellung des Stahlbaus
- 2.780 kg Stahl (Weener)
- 3.290 kg Stahl (Marker Siel)

Ponton für Emsfähre
Weener/Marker Siel
Konstruktion und Zeichnungserstellung des Stahlbaus
- 22.210 kg Stahl (Weener)
- 15.655 kg Stahl (Marker Siel)

Gleis 13
Gütersloh
Konstruktion & Entwicklung nach Statikvorgaben
Zeichnungserstellung der Stahlunterkonstruktion
Facid & Gewebezuschnitt
- 24.150 kg Stahl
- 1.540 m2 Gewebe

Hasenbergschule
Stuttgart
Konstruktion nach Statikvorgaben der Stahlunterkonstruktion
Facid & Gewebezuschnitt
- 7.525 kg Stahl
- 179m² Gewebe

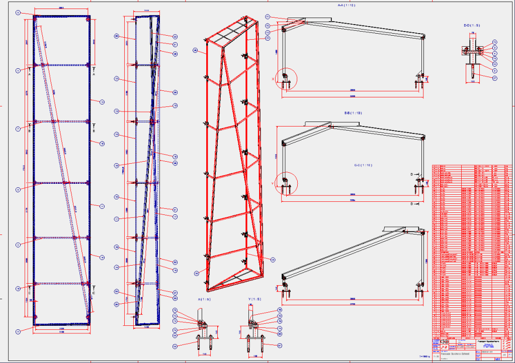
Rutschenturm
Norwegian Cruise Line
Konstruktion des Treppenturms und fertigungsgerechte Zeichnungserstellung
- 24.550 kg Stahl

Onko-Zentrum
Berlin
Konstruktion & Entwicklung nach Statikvorgaben
Zeichnungserstellung der Stahlunterkonstruktion
Facid & Gewebezuschnitt
- 7.360 kg Stahl
- 306m² Gewebe

Treppenhäuser VWFS
Braunschweig
Konstruktion & Entwicklung nach Statikvorgaben
Zeichnungserstellung der Stahlunterkonstruktion
Facid & Gewebezuschnitt
- 5.900 kg Stahl
- 500m² Gewebe

Strandkiosk „Fischköppe“
Scharbeutz
Umsetzung der Architektenplanung
Konstruktion des Stahlbaus
Zeichnungserstellung für die Fertigung
- 2.350 kg Stahl
- 150m² Gewebe

Uni-Klinikum
Bonn
Konstruktion & Entwicklung nach Statikvorgaben
Zeichnungserstellung der Stahlunterkonstruktion
Facid & Gewebezuschnitt
- 11.670 kg Stahl
- 342m² Gewebe

Anlagengestell mit Begehung für Firma Doppstatt
Oranienburg
Konstruktion des Stahlbaus
Zeichnungserstellung für die Fertigung
- 6.570 kg Stahl

Business School
Mannheim
Umsetzung der Architektenplanung
Konstruktion des Stahlbaus
Facid & Gewebezuschnitt
Zeichnungserstellung für die Fertigung

Klappbarer Göschstock
Disney Cruise Line
Entwicklung klappbarer Göschstock
Statischer Nachweis der Hydraulik
Konstruktion & Zeichnungserstellung für die Fertigung
- Oberteil 280 kg Stahl
- Unterteil 1.030 kg Stahl
Sie möchten mehr erfahren? Dann kontaktieren Sie mich!
Weitere Referenzen
Windhoff Bahn- und Anlagentechnik GmbH
Rheine (1996-2004)
- Verschiebe- und Drehbühnen für die DB
- mobile und stationäre Hebeböcke zum Wechsel von Radsätzen für die DB
- Schienenschleiffahrzeug für Straßenbahnnetz
- Werkzeugwechselwagen für Pressenstraßen der Automobilindustrie, Stahlwerksausrüstungen
GM Stahlbau GmbH
Lathen (1997-1999)
- Zeichnungserstellung von Produktions- und Fertigungshallen nach Architekten- und Statikerunterlagen
- Autohaus, Fertigungshallen, Stallanlagen, Fahrstuhlschacht
J.-H.-Kramer GmbH & Co.KG
Bremerhaven (1997)
- Brennschablonen
Duni GmbH
Bramsche (seit 2000)
- Konstruktion und Detaillierungen von Sondermaschinen und Anlagen für die Serviettenproduktion
- Automatisierung, Zusatzmodule, Maschineneinhausungen und Anbauten
Gronemeyer & Banck
Steinhagen (2000-2002)
- Konstruktion und Detaillierungen von Großtanks, Flachbodentanks, Silos und Druckbehälter mit diversen Flanschen und Begehungen
Wendt Maschinenbau GmbH
Georgsmarienhütte (2001-2002)
- Sondermaschinen für die Holzindustrie
- Drehtisch, Verfahrbühne
Westeria Fördertechnik GmbH
Ostbevern (seit 2003)
- Gurtförderer, Kettenförderer, Schütten, Einfülltrichter, Separatoren, Spannstationen, Stahlbau-Engineering
hpl-Neugnadenfelder Maschinenfabrik GmbH
Neugnadenfeld (seit 2011)
- Maschinen und Ausrüstungen für Walzwerke
- Haspel, Überleiteinrichtungen, Umlenktreiber, Zugsteuereinrichtungen, schwenkbare S-Rolleneinheit, Arbeitsbühnen
Lienesch GmbH & Co. KG
Ibbenbüren (2014)
- Prüftisch hydraulisch höhenverstellbar
Niehoff Industriemontagen
Greven (seit 2014)
- Stahlbau-Engineering, Begehungen
- Magnesium-Behandlungsanlage für Firma Jürgens-Maschinenbau GmbH
B+S GmbH
Rheine (2014-2017)
- Rüttler für die Schwellenfertigung
- Formen für Betonfertigteile
Stahlservice Jansen GmbH
Rhauderfehn (seit 2016)
- Zeichnungserstellung Stahlhallen nach Architekten- und Statikerunterlagen
- Schiffsaufbauten für die Meyer Werft (Rutschenturm, Windschirme, Dekomasten, Stahl-Alu-Pergola)
- Fähranleger (Ponton, bewegliche Brücke, Dalbenschloss)
- Gewebefassaden Facid (Schüco)
- Hebekippvorrichtung für KS-Gleitlager
WKB-Systems GmbH
Hörstel (2017 – 2022)
- Strohpaneelmaschine (Netzabwickler, Heizstrecke, Endenversiegelung)
- Schiebebühne, Förderstrecke, Härterost, Wachsbad
GKS Gröschel GmbH
Dortmund (seit 2022)
- Gewebefassade Facid (Schüco)
